Продажа Таунхаус, 116 м2
микрорайон Березки-2, ул. 3-й квартал
Подробнее об объекте
Продаётся загородный дом (дуплекс) с дизайнерским ремонтом в КП Берёзки-Новолуговое.
Предлагаем вам не просто дом, а готовое пространство для комфортной жизни, где каждая деталь продумана.
Ключевые параметры:
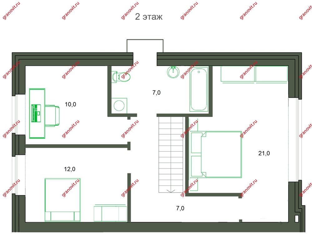
· Дом: 116 кв. м., кирпич, газовое отопление, центральные коммуникации.
1 этаж: кухня-гостинная, 1 санузел, гараж.
2 этаж: 1 кабинет, 2 спальни, 1 санузел.
· Участок: 2. 71 сотки, ухоженная территория.
· Паркинг: Гараж 19 кв. м. + парковка на два автомобиля.
Дизайн в деталях:
· Полы: Практичный кварцвинил с подогревом.
· Стены: Эксклюзивные обои из Франции и Италии.
· Потолки: Многоуровневые натяжные конструкции с современным освещением.
· Кухня: Дизайнерское панно с элегантным окрашенным фасадом.
· Лестница: Основание из карельской берёзы, ступени из бука с подсветкой, кованые балясины.
· Гостиная: есть выход на собственную террасу.
· Освещение: Во всех комнатах установлены хрустальные люстры, создающие особенную атмосферу.
· Двери: Из массива и натурального шпона.
· Экстерьер: Участок обрамлён живой изгородью из туй, выполнена отмостка из плитки.
О коттеджном посёлке Берёзки-Новолуговое:
Развитая инфраструктура в посёлке сделает Вашу жизнь максимально комфортной:
* Детские и спортивные площадки, созданные для маленьких жителей посёлка.
Ваши дети будут в восторге от новых друзей и игр на свежем воздухе!
* В шаговой доступности находятся: центр досуга, супермаркеты, аптека, пункты выдачи заказов.
Больше не нужно тратить время на поездки за всем необходимым!
* Остановка общественного транспорта прямо на въезде в посёлок.
* Метро Золотая Нива - 20 минут по Восточному обходу.
* Метро Речной вокзал - 30 минут по ул. Большевистская.
Только представьте:
Вы просыпаетесь под пение птиц, а не под гул машин.
Пьёте кофе, наслаждаясь тишиной и свежим воздухом.
Ваши дети безопасно играют на площадке, а Вы спокойно занимаетесь своими делами.
Вечером, вся семья собирается в уютной гостиной.
Разве не об этом Вы мечтали?
Свяжитесь с нами и мы ответим на все интересующие вас вопросы!
Агентство Грановит - прямой представитель собственника объекта, гарантируем полное юридическое сопровождение.

Продажа Таунхаус, 116 м2
микрорайон Березки-2, ул. 3-й квартал
Описание
Продаётся загородный дом (дуплекс) с дизайнерским ремонтом в КП Берёзки-Новолуговое.
Предлагаем вам не просто дом, а готовое пространство для комфортной жизни, где каждая деталь продумана.
Ключевые параметры:
· Дом: 116 кв. м., кирпич, газовое отопление, центральные коммуникации.
1 этаж: кухня-гостинная, 1 санузел, гараж.
2 этаж: 1 кабинет, 2 спальни, 1 санузел.
· Участок: 2. 71 сотки, ухоженная территория.
· Паркинг: Гараж 19 кв. м. + парковка на два автомобиля.
Дизайн в деталях:
· Полы: Практичный кварцвинил с подогревом.
· Стены: Эксклюзивные обои из Франции и Италии.
· Потолки: Многоуровневые натяжные конструкции с современным освещением.
· Кухня: Дизайнерское панно с элегантным окрашенным фасадом.
· Лестница: Основание из карельской берёзы, ступени из бука с подсветкой, кованые балясины.
· Гостиная: есть выход на собственную террасу.
· Освещение: Во всех комнатах установлены хрустальные люстры, создающие особенную атмосферу.
· Двери: Из массива и натурального шпона.
· Экстерьер: Участок обрамлён живой изгородью из туй, выполнена отмостка из плитки.
О коттеджном посёлке Берёзки-Новолуговое:
Развитая инфраструктура в посёлке сделает Вашу жизнь максимально комфортной:
* Детские и спортивные площадки, созданные для маленьких жителей посёлка.
Ваши дети будут в восторге от новых друзей и игр на свежем воздухе!
* В шаговой доступности находятся: центр досуга, супермаркеты, аптека, пункты выдачи заказов.
Больше не нужно тратить время на поездки за всем необходимым!
* Остановка общественного транспорта прямо на въезде в посёлок.
* Метро Золотая Нива - 20 минут по Восточному обходу.
* Метро Речной вокзал - 30 минут по ул. Большевистская.
Только представьте:
Вы просыпаетесь под пение птиц, а не под гул машин.
Пьёте кофе, наслаждаясь тишиной и свежим воздухом.
Ваши дети безопасно играют на площадке, а Вы спокойно занимаетесь своими делами.
Вечером, вся семья собирается в уютной гостиной.
Разве не об этом Вы мечтали?
Свяжитесь с нами и мы ответим на все интересующие вас вопросы!
Агентство Грановит - прямой представитель собственника объекта, гарантируем полное юридическое сопровождение.













































































































