Аренда Свободное назначение, 125 м2
Новосибирск, Ленинский р-н, ул. Киевская 3/1
Вид с улицы
Подробнее об объекте
Тип
Свободное назначение
Год постройки
2010
Высота потолков
3,0 м
Ремонт
Чистовая отделка
Отопление
Есть
Парковка
Открытая
Тип здания
Жилой дом
Вход
С улицы
Обновлено 48 минут назад.
120 000 ₽
960 ₽/м2
125 м2Площадь общая
1 / 10Этаж
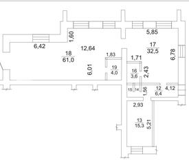
125 м² на первом этаже жилого дома.
Рядом: клиники, учебные учреждения. Не хватает вашей точки.
Два входа
Два санузла
Витринное остекление
15 кВт электрическая мощность
Это точка, где ваш бизнес будет видно из далека.
Звоните

Мусульманова Марина Викторовна
Брокер по коммерческой недвижимости
+7 (964) 096-54-…Показать телефон
Ленина 12, офис 501
Написать продавцу
Вариант на сайте: www.granovit.ru//arenda/svobodnoe-naznachenie/novosibirsk/leninskiy/kievskaya-31/302761.html
Аренда Свободное назначение, 125 м2
Новосибирск, ул. Киевская 3/1
120 000 ₽
960 ₽/м2
В ипотеку за 0 ₽/мес
Хотите купить дешевле?125 м2Общая
1 / 10Этаж
Описание
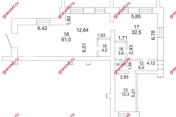
125 м² на первом этаже жилого дома.
Рядом: клиники, учебные учреждения. Не хватает вашей точки.
Два входа
Два санузла
Витринное остекление
15 кВт электрическая мощность
Это точка, где ваш бизнес будет видно из далека.
Звоните
Подробнее об объекте
Тип
Свободное назначение
Год постройки
2010
Высота потолков
3 м
Ремонт
Чистовая отделка
Отопление
Есть
Парковка
Открытая
Тип здания
Жилой дом
Вход
С улицы

Мусульманова Марина Викторовна
Брокер по коммерческой недвижимости
Ленина 12, офис 501
Написать продавцу








